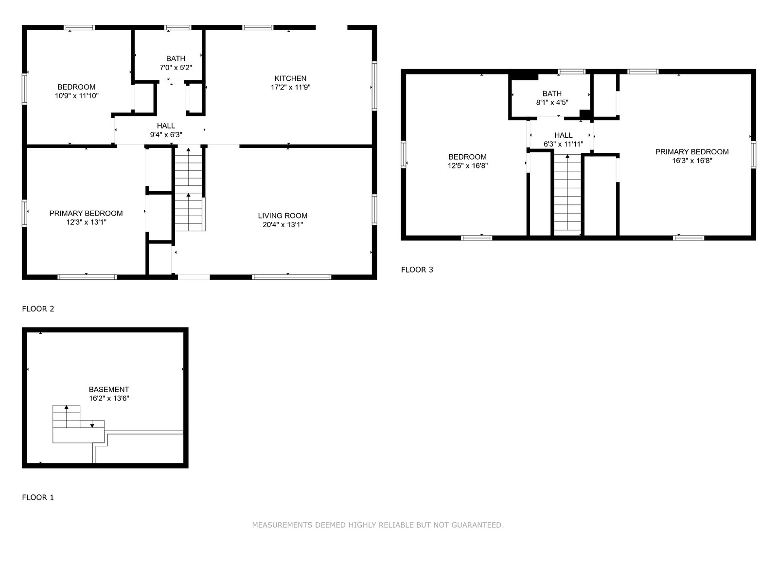
1,468sqft
12,000sf lot
Enjoy the Browns Mills lifestyle in this fabulous 4 bedroom, 2 bath home. Built in 1958 with a clean and well-planned 1468 sqft floorplan. This beautiful home will sell fast! Send an inquiry in ...
Read More ›


